Closed by Atlanta Fine Homes Sotheby's International

Property Description

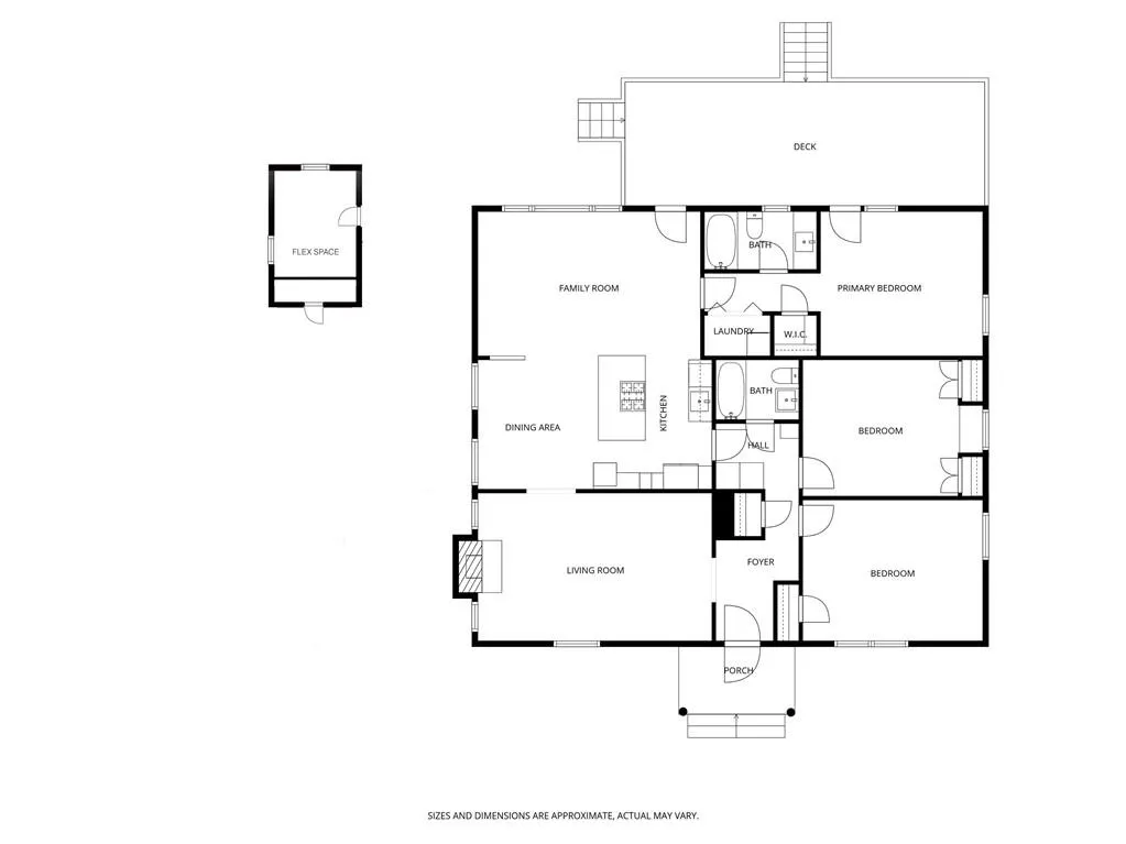
The charming Collier Hills cottage you’ve been waiting for! This beautifully renovated and meticulously maintained home blends timeless 1940s charm with sophisticated updates in one of Atlanta’s most beloved intown neighborhoods. A welcoming foyer with a classic telephone nook opens to a gracious living room featuring a wood-burning fireplace, detailed millwork, and abundant natural light. The kitchen has been completely opened and reimagined with marble countertops, stainless steel appliances, a wine fridge, wine rack, and an island with seating perfect for everyday living or entertaining. The kitchen flows seamlessly into the dining area and family room, creating a bright and connected main level that feels both elegant and inviting. A private hallway leads to the serene primary suite tucked at the rear of the home, complete with a walk-in closet, a beautifully renovated bath with marble tile and laundry room. Two additional bedrooms share an updated hall bath. Additional features include hardwood floors, plantation shutters, and generous closet space throughout. The backyard is an entertainer’s dream featuring a large deck, fire pit area, and a FINISHED detached guest house ideal for an office, gym, or creative studio. The fully fenced backyard offers privacy and plenty of space to relax or host gatherings. Brand new sod in the front yard and new landscape lighting installed! Located just steps from Tanyard Creek Park, the Northside BeltLine Trail, and Bobby Jones Golf Course, this home offers the best of Collier Hills living with walkable green spaces, an active neighborhood community, and proximity to top restaurants, schools, and shopping. This is the one you’ve been waiting for, classic Collier Hills charm with all the modern updates, multiple living spaces and a huge flat backyard.

Features
: No
: Master On Main
: Tub/shower Combo
: Separate Dining Room, Open Concept
: Entrance Foyer, High Speed Internet, Walk-in Closet(s), Disappearing Attic Stairs, Crown Molding, Recessed Lighting
: Main Level, Laundry Room, In Hall
1
: Security System Owned
: Crawl Space
: No
: Storage, Private Yard, Lighting, Private Entrance
: Front Yard, Level, Back Yard, Landscaped, Private
: Composition
: No
: Driveway, Attached, Parking Pad, Kitchen Level, Level Driveway, On Street
Address Map
1828 Greystone Road Nw
Atlanta
GA
30318
Fulton - GA
W85° 35' 33.5''
N33° 48' 18.4''
Please use GPS.
Collier Hills
Additional Details
7670439
Atlanta Fine Homes Sotheby's International
: Traditional, Cottage
North Atlanta
Willis A. Sutton
E. Rivers
$995,000
: Cement Siding, Frame
: One
: No
: Guest House
3
: No
: Cash, Conventional
$995,000
17 014600070168
: Resale
: No
$9,340
2024
: Public
: Public Sewer

1828 Greystone Road Nw

1828 Greystone Road Nw, Atlanta, Georgia 30318

3 Bedrooms
2 Bathrooms
1,860 Sqft
$995,000
MLS# 7670439
Basic Details
Status : Closed
Asking Price : $995,000
Bedrooms : 3
Bathrooms : 2
Square Footage : 1,860 Sqft
Year Built : 1940
Lot Area : 0.32 Acres
Standard Status : Closed
Close Date : 11/24/2025
Property SubType : Single Family Residence
Ben Hirsh
Hirsh Real Estate - Buckhead.com
Contact Ben